Skip To Content

1281-1283 Fairview Church Road

Spartanburg, SC 29303
  • $449,900
  • STATUS: Closed
  • ON SITE: 328 Days
  • ID#: 1545694
Sold - 04/18/2025
$449,900
SOLD - 04/18/2025
  • 0
    BEDS
  • 0.84
    ACRES
  • 0
    BATHS
  • 0
    1/2 BATHS
Neighborhood:
Type:
Multi-Family
Built:
2025
County:
Area:
015

School Information

Elementary School:
Middle School:
High School:
Offered by Traci Brock of RE/MAX Executive Spartanburg

Description

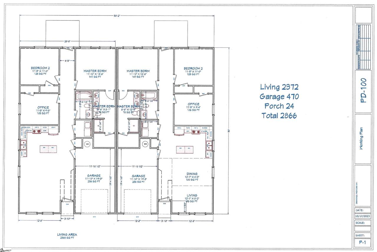
This is a great INVESTMENT opportunity! Each side of the brand new duplex offers 3 bedrooms, 2 baths, open floor plan, single car garage, and a covered back porch. It has quartz countertops, stainless steel appliances, subway tile backsplash, recessed lighting, a walk-in pantry, and a laundry room. The master suite has a private bath with a walk-in shower. The duplex is located in District 2 schools and is convenient to I-85 on the Charlotte side. There are four duplexes available, each priced at $449,900. Don't miss out on this great opportunity to put your money to work for you!

Monthly Payment Calculator



© 2025 Greater Greenville Association of Realtors Multiple Listing Service. All rights reserved. IDX information is provided exclusively for consumers' personal, non-commercial use and may not be used for any purpose other than to identify prospective properties consumers may be interested in purchasing. Information is deemed reliable but is not guaranteed accurate by the MLS or The Moriarty-Pearson Group | Keller Williams Western Upstate. Data last updated 2025-12-10T18:02:13.66.
www.yourupstateagents.com/homes/159472502
Print Image

1281-1283 Fairview Church Road Spartanburg, SC 29303

  • Price: $449,900
  • Status: Closed
  • On Site: 328 Days
  • Updated: 15 min ago
  • ID#: 1545694
0
Beds
0
Baths
0
½ Baths
0.84
Acres
2025
Built
Neighborhood:
None
County:
Spartanburg
Area:
015
Elementary School:
Shoally Creek
Middle School:
Other
High School:
Boiling Springs
Property Description
This is a great INVESTMENT opportunity! Each side of the brand new duplex offers 3 bedrooms, 2 baths, open floor plan, single car garage, and a covered back porch. It has quartz countertops, stainless steel appliances, subway tile backsplash, recessed lighting, a walk-in pantry, and a laundry room. The master suite has a private bath with a walk-in shower. The duplex is located in District 2 schools and is convenient to I-85 on the Charlotte side. There are four duplexes available, each priced at $449,900. Don't miss out on this great opportunity to put your money to work for you!
Exterior Features

Exterior Finish Vinyl Siding Foundation Slab Parking Per Unit Garage Roof Architectural Stories 1

Interior Features

Cooling System ElectricHeat Pump Heating System ElectricHeat Punp Unit1 Bedrooms 3 Unit1 Features Kitchen/Breakfast RoomLiving/Great RoomDishwasherDryerWasherCeramic Tile FloorVinyl FloorOther/See RemarksStand Alone Rng-ElectricStand Alone Rng-Smooth Tp Unit1 Full Baths 2 Unit2 Bedrooms 3 Unit2 Features Kitchen/Breakfast RoomLiving/Great RoomDishwasherDryerWasherCeramic Tile FloorVinyl FloorOther/See RemarksStand Alone Rng-ElectricStand Alone Rng-Smooth Tp Unit2 Full Baths 2 Unit3 Features None Unit4 Features None Water Heater Electric

Property Features

Approx Age Under Construction Auction YN No Community Amenities None Docs On File SQFT Sketch Garbage Pickup Private Hoa YN No Multifamily Type Duplex Sewer Septic Special Finances None Water Public

Listing information © 2025 Greater Greenville Association of Realtors MLS
Listing provided by Traci Brock of RE/MAX Executive Spartanburg: 864-573-6690.


© 2025 Greater Greenville Association of Realtors Multiple Listing Service. All rights reserved. IDX information is provided exclusively for consumers' personal, non-commercial use and may not be used for any purpose other than to identify prospective properties consumers may be interested in purchasing. Information is deemed reliable but is not guaranteed accurate by the MLS or The Moriarty-Pearson Group | Keller Williams Western Upstate. Data last updated 2025-12-10T18:02:13.66.
 
https://bt-photos.global.ssl.fastly.net/ggar/1280_boomver_2_1545694-2.jpg
Logo
The Moriarty-Pearson Group | Keller Williams Western Upstate
4107 Liberty Hwy
Anderson SC, 29621
Offered by Traci Brock of RE/MAX Executive Spartanburg